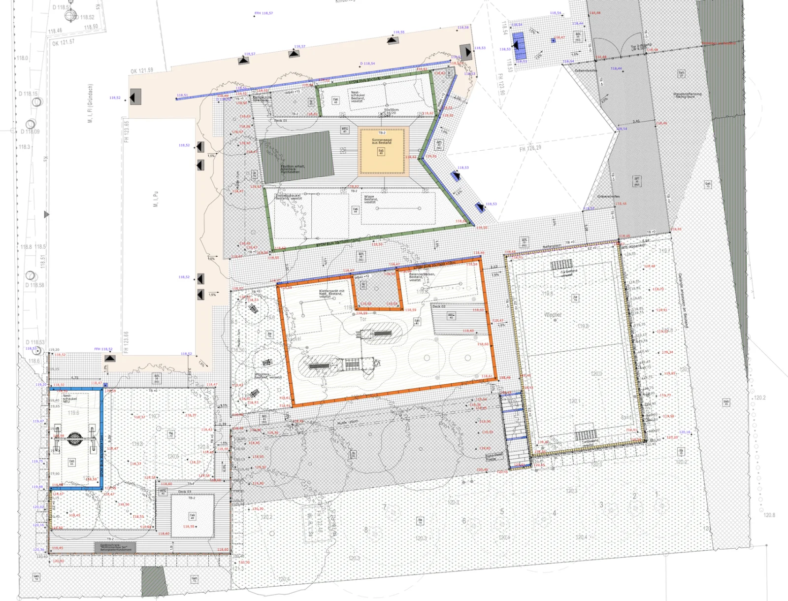
Die Kita Sonnenkäfer in Dölzig wird seit 2023 umfassend saniert. Hierbei werden die Freianlagen vollumfänglich umgestaltet. Durch die Hanglage des Gartens werden tiefe Einschnitte im Gelände geplant um altersgerechte Spielflächen sowie einen Bolzplatz integrieren zu können. Die bisher ungegliederten, überspielten Rasenflächen werden in, definierte aber dennoch offene Spielbereiche für die Altersgruppen 1-6 Jahre umgewandelt. Hierbei werden die bestehenden Spielgeräte zum großen Teil wieder verwendet und mit einen DIN-gerechten Fallschutz ausgestattet. Die Spielflächen werden durch Rollerwege und mehreren Deck-Landschaften dauerhaft nutz- und erlebbar gestaltet. Ebenso erfolgt eine umfangreiche Ergänzung von Schattenspendenden Bäumen, Sandbaubereichen, Einhausungen für Wärmepumpe und Spielgeräte sowie die Ertüchtigung der Feuerwehr- und Pflegezufahrt.

Projektdaten
BauherrIn: Stadt Schkeuditz
Zeitraum: 2023- 2027
Leistungsumfang: LPH 1-8 HOAI