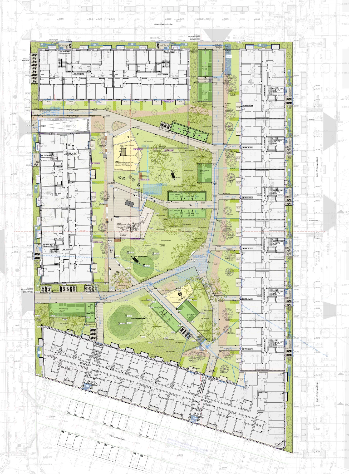
Die Planungsaufgabe umfasst den Neubau einer Wohnanlage mit Gewerbe- und Dienstleistungsanteilen sowie einer Tiefgarage auf dem Grundstück an der Heinrich-Mann-Allee in Potsdam. Die Neubebauung verteilt sich auf zwei Blöcke mit jeweils innenliegenden Höfen.
Die Freiflächen der Höfe zonieren sich in private und gemeinschaftlich genutzte Bereiche zum Spielen und Erholen für alle Bewohnenden. Neben der Berücksichtigung der Bestimmungen des B-Plans werden durch zahlreiche Ersatzpflanzungen auch zusätzlich Teile der durch die Baumaßnahme zu fällenden Bäume auf dem Grundstück ausgeglichen. Ziel ist die Gestaltung grüner, lebenswerter Wohnhöfe unter Berücksichtigung eines nachhaltigen Regenwassermanagements.
